翼板变厚度箱形梁的剪力滞效应分析

赵庆友, 张元海, 邵江艳

(兰州交通大学土木工程学院,兰州730070)

摘要: 针对翼板厚度沿截面宽度方向线性变化的混凝土箱形梁,利用势能变分原理对其进行剪力滞效应分析.选取剪力滞效应引起的附加挠度作为描述剪力滞变形状态的广义位移,并考虑轴力平衡条件对剪力滞效应的影响.将简支箱梁在均布荷载和集中荷载作用下的理论计算值与有限元值进行对比,结果表明:采用该文分析方法得到的计算值与有限元值吻合良好,证实了该文分析方法的正确性.与将翼板变厚度箱梁简化为等厚度箱梁的计算方法相比,考虑翼板厚度变化的计算方法可提高计算精度,误差减小量最大达到了5.65%.

关 键 词: 薄壁箱梁; 剪力滞效应; 能量变分法; 翼板变厚度; 轴力平衡

引 言

在现代桥梁工程中,混凝土薄壁箱梁因受力性能较好的特点而被广泛应用.薄壁箱梁在发生竖向挠曲变形时,由腹板传递给翼缘板的剪力流使翼缘板在自身平面内产生剪切变形,从而引起翼板正应力沿其宽度方向呈非均匀分布状态,使得翼板不再满足初等梁理论中的剪切刚性条件,这就是箱形梁的剪力滞效应[1].分析剪力滞效应常用方法有变分法、比拟杆法、有线条法和有限元法等,其中以能量变分法应用最广.

考虑到配筋及截面应力的需要,箱梁翼板通常沿截面宽度方向厚度会发生变化,越靠近腹板与翼板的交接处越厚,越远离交接处越薄[2].目前,变分法分析箱梁大多以翼板等厚度箱梁为对象[3-5],对翼板变厚度箱梁的研究中,有的通过有限元法研究其剪力滞效应[6],或是将变厚度翼板划分为两部分来计算截面特性常数进而分析剪力滞效应[7].在使用变分法分析剪力滞效应时,对剪力滞翘曲位移函数的选取也不尽相同,有抛物线[8-10]、余弦函数[11]及悬链线[12]等多种形式,但大部分都缺少理论证明.其中,文献[7]采用三次翘曲位移函数对翼板变厚度箱梁进行了分析,但其并没有对翼板变厚度箱梁的变厚度解与将变厚度箱梁简化为等厚度箱梁而得到的等厚度解进行直观对比分析.同时,文献[13]表明采用三次型纵向位移假定下的变分法分析剪力滞问题并不理想,而且还受到截面形式及截面位置的影响.张元海等从箱梁翼缘板的剪力流分布规律入手,通过构建翼缘板的面内剪切变形与纵向位移的关系,证明了二次抛物线是较为合理的剪力滞翘曲位移函数形式[14].对于应用广泛的带悬臂板的箱梁而言,剪力滞翘曲位移函数的确定还应该考虑由于剪力滞效应的存在而引起翘曲应力的重分布,使得箱形梁横截面的中性轴与形心轴发生偏离,从而导致箱梁翘曲正应力不能满足轴向平衡条件的问题.为此,倪元增等提出对剪力滞翘曲位移函数增加满足全截面轴力自平衡条件的附加轴向位移[15],此方法得到了应用.

本文在已有文献的基础上,采用二次翘曲位移函数作为描述箱梁剪力滞效应的合理翘曲位移函数,选取剪力滞效应引起的附加挠度作为广义位移,并考虑剪力滞翘曲应力自平衡条件,对翼板变厚度简支箱梁在均布荷载和集中荷载作用下的剪力滞效应进行了分析,建立了对翼板变厚度箱形梁剪力滞效应的分析方法.

1 利用附加挠度描述剪力滞变形状态

如图1所示,一翼板变厚度箱梁,在竖向分布荷载p(z)作用下产生竖向挠曲变形,由于剪力滞效应的影响,其横截面变形不再只是初等梁理论下的变形,还包括应力分布不均匀引起的翘曲变形.因此本文选取剪力滞效应引起的附加挠度作为描述剪力滞变形的广义位移,从而横截面上任一点处的纵向位移u表达为

式中,w(z)为相应初等梁的挠度;ω(x,y)为相应于附加挠曲转角 -f'(z)的剪力滞广义翘曲位移函数;f(z)为剪力滞效应引起的附加挠度;η为考虑剪力滞翘曲应力自平衡条件的修正系数;ωξ(x,y)为剪力滞基本翘曲位移函数.

图1 箱形梁简图
Fig.1 Schematic of the box girder

运用Hooke定律可得到横截面上任一点正应力σ的表达式:

由式(2)可以看出,等号右边第二项为剪力滞效应引起的翘曲应力,即

竖向荷载作用下,剪力滞效应引起的翘曲应力在翼板变厚度箱形梁横截面上应满足自平衡条件,即

将式(3)代入式(4)和式(5),可将自平衡条件简化为

式中

本文选取二次抛物线函数来描述翘曲位移模式,剪力滞翘曲位移函数如下:

式中,d为满足全截面轴力自平衡的附加轴向位移.

与剪力滞翘曲应力σω相对应的广义力矩[16]

式中,d A,结合式(3)和式(6)的关系,可将 Iω表达为

式中,,Iξ和 I的物理意义可参见文献[17].

2 剪力滞控制微分方程的建立及其求解

受任意竖向分布荷载p(z)作用的箱形梁,如图1所示,其总势能的一阶变分为

由最小势能原理可知δП=0,由式(10)可得控制微分方程如下:

剪力滞控制微分方程(12)可化为

式中,k可称为Reissner参数,即

求解方程(14)时的边界条件如下:

对于简支端 f=0,f″=0;

对于固定端 f=0,f'=0;

对于自由端 f″=0,f- k2f'=0.

微分方程(14)的通解可表达为

式中,C1~C4为取决于箱形梁两端边界条件的常数,f0(z)为与外荷载分布有关的特解.

对于承受满跨竖向均布荷载q(z)的简支箱梁,如图2所示,由式(15)结合边界条件可得梁的附加挠度表达式为

图2 承受均布荷载的简支箱梁
Fig.2 The simply supported box girder subjected to a uniform load

对于承受集中荷载p(z)的简支箱梁,如图3所示,由式(15)结合边界条件和连续性条件可得附加挠度表达式为

当a=b=l/2,即集中荷载p作用于跨中截面时,可得左半跨的附加挠度表达式为

图3 承受集中荷载的简支箱梁
Fig.3 The simply supported box girder subjected to a concentrated load

3 变厚度翼板的剪力滞广义截面常数计算

在翼板等厚度箱梁截面的基础上,改变翼板的厚度,在等面积的原则下,使翼板厚度沿横截面方向线性变化,保证翼板面积不变,从而截面整体的抗弯惯性矩I也基本不变,消除了截面抗弯刚度的影响,如图4所示.

图4中y1和y3分别表示顶板和悬臂板的下缘,y2表示底板的上缘,将y1,y2,y3用方程表示:

y11x-ys1,y2=-α2x+yx2,y33(b1+b3-x) -ys3.

图4 箱梁横截面
Fig.4 The cross section of the box girder

将式(8)代入式(6),可得翼板变厚度箱梁常数d的表达式:

式中,y'x1和y'x2分别为图5中A1和A2的形心到箱梁横截面中性轴的距离,同理y's1和y's2为顶板中对应截面的形心到箱梁横截面中性轴的距离;A为箱梁横截面的面积;α1,α2,α3分别为顶板、底板、悬臂板厚度的变化系数,

图5 箱梁左底板
Fig.5 The left bottom plate of the box girder

为了简化计算,将图5(a)中的箱梁左底板横截面图简化为图5(b)中的底板简化图,由于研究对象为薄腹板箱梁,所以简化后底板上缘y2斜率变化较小,对应力的计算结果影响很小.在计算时,对顶板和悬臂板做同样简化.

以箱梁底板为例,通过翼板对箱梁横截面中性轴的积分,可得到翼板截面特性常数Iξ,I,Aξ的表达式:

由对称性可知,底板右半部分的广义截面常数与左半部分相等,顶板和悬臂板的广义截面常数可由相同的方法求得,经叠加可得到整个截面的截面常数.由式(21)~(23)可知,当α123=0时,各式即为等厚度底板的广义截面特性常数表达式.

4 数值算例

4.1 算例 1

以文献[18]中算例4.1的简支箱梁模型为例,在等面积的原则下令t11=t21=t31=8.6 mm,t12=t22=t32=3.4 mm,其他横截面尺寸如图6所示,计算点的布置以文献[18]为准.箱梁跨径为800 mm,弹性模量E=3 000 MPa,Poisson比μ=0.385,在简支梁上作用荷载集度q=1 N/mm的满跨均布荷载.按照本文方法进行计算,并将有限元结果一并列于表1中.

图6 简支箱梁横截面(单位:mm)
Fig.6 The cross section of a simply supported box girder(unit:mm)

由表1可以看出,按本文方法计算得到的结果与ANSYS值吻合良好,证明了本文所作分析的正确性.

表1 均布力作用下跨中截面应力计算结果
Table 1 Stress calculation results of the mid-span section under the uniform load

calculation point i ANSYS[18]σⅠ/MPa this paper σⅡ/MPa error((σⅡ - σⅠ)/σⅠ)/%1-0.425 2 -0.458 3 7.78-0.427 6 -0.452 0 5.71 3-0.439 0 -0.454 1 3.44 4-0.458 0 -0.463 9 1.29 5-0.459 6 -0.463 9 0.94 6-0.455 9 -0.454 1 -0.39 7-0.459 5 -0.452 0 -1.63 8-0.471 4 -0.458 3 -2.78 9 0.774 3 0.774 8 0.06 10 0.758 1 0.733 2 -3.28 11 0.756 8 0.712 6 -5.84 12 0.773 2 0.714 1 -7.64 2

4.2 算例 2

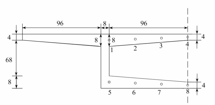
在等面积的原则下,改变箱梁翼板的尺寸,改变后的箱梁横截面尺寸和计算点布置如图7所示,由于悬臂板的正应力值是在顶板的基础上推导出的,所以悬臂板的理论值与有限元值差别较大,在此处不做对比.

图7 简支箱梁横截面(单位:mm)
Fig.7 The cross section of the simply supported box girder(unit:mm)

取一跨度为800 mm的混凝土简支箱梁,材料的弹性模量E=3 000 MPa,Poisson比μ=0.385,在简支梁上作用荷载集度q=1 N/mm的竖向满跨均布荷载.根据本文方法对翼板变厚度箱梁跨中截面各计算点的正应力进行计算,然后将翼板变厚度箱梁按等面积原则简化为等厚度箱梁,即令翼板的厚度变为6 mm,对等厚度箱梁跨中截面中线上的相应计算点进行计算,并将两理论计算值连同ANSYS值一同列于表2中.

由表2可以看出,本文计算结果与ANSYS值吻合良好;与等厚度解相比较,本文的计算精度有所提高,在点1和点4处误差相差较大,计算精度最大提高了5.13%.

由图8和9可知,对于均布荷载作用下简支箱梁的正应力值,本文与有限元值更贴近,变化更均匀.

表2 均布荷载作用下跨中截面应力对比
Table 2 Stress comparison for the middle section under the uniform load

calculation point i ANSYS σⅠ/MPa this paper σⅡ/MPa error((σⅡ - σⅠ)/σⅠ)/%uniform thickness σⅢ/MPa error((σⅢ - σⅠ)/σⅠ)/%1-0.455 0 -0.456 4 0.31 -0.474 9 4.37-0.444 5 -0.445 8 0.29 -0.447 7 0.72 3-0.443 3 -0.443 1 -0.05 -0.431 4 -2.68 4-0.450 4 -0.449 1 -0.29 -0.426 0 -5.42 5 0.740 8 0.768 3 3.71 0.792 3 6.95 6 0.724 2 0.720 0 -0.58 0.719 0 -0.72 7 0.717 1 0.694 3 -3.18 0.675 0 -5.87 8 0.726 1 0.692 0 -4.70 0.660 3 -9.06 2

图8 均布荷载作用下箱梁顶板应力
Fig.8 The top slab stresses of the box girder under the uniform load

图9 均布荷载作用下箱梁底板应力
Fig.9 The bottom slab stresses of the box girder under the uniform load

在箱梁跨中作用p=272.2 N的集中荷载,根据本文方法计算跨中截面各计算点的正应力,并与ANSYS值和等厚度解进行比较,如表3所示.

表3 集中荷载作用下跨中截面应力对比
Table 3 Stress comparison for the middle section under the concentrated load

calculation point i ANSYS σⅠ/MPa this paper σⅡ/MPa error((σⅡ - σⅠ)/σⅠ)/%uniform thickness σⅢ/MPa error((σⅢ - σⅠ)/σⅠ)/%1-0.352 0 -0.357 3 1.51 -0.377 2 7.16-0.293 5 -0.307 7 4.84 -0.312 7 6.54 3-0.276 8 -0.279 3 0.90 -0.274 0 -1.01 4-0.275 8 -0.273 8 -0.73 -0.261 1 -5.33 5 0.557 8 0.618 0 10.79 0.648 5 16.26 6 0.456 8 0.467 9 2.43 0.474 5 3.87 7 0.421 0 0.377 7 -10.29 0.370 1 -12.09 8 0.420 7 0.350 2 -16.76 0.335 3 -20.30 2

由表3可以看出,本文计算结果与ANSYS值吻合良好,在少数计算点处偏差稍大,主要是由于荷载局部效应造成的;与等厚度解相比较,本文有较好的计算精度,在点1和点4处误差相差较大,利用本文的计算方法可使点1处计算误差减小量达到5.65%.

由图10和11可知,对于集中荷载作用下简支箱梁的正应力值,本文与有限元值更贴近,变化更均匀.

图10 集中荷载作用下箱梁顶板应力
Fig.10 The top slab stresses of the box girder under the concentrated load

图11 集中荷载作用下箱梁底板应力
Fig.11 The bottom slab stresses of the box girder under the concentrated load

5 结 论

1)选取剪力滞效应引起的附加挠度作为广义位移,考虑剪力滞翘曲应力自平衡条件,对翼板变厚度箱梁进行了剪力滞效应分析.算例表明,本文计算结果与有限元计算结果吻合良好,验证了本文分析方法的正确性.

2)与将翼板变厚度箱梁简化为等厚度箱梁的计算方法相比,考虑翼板厚度变化可大大减小箱梁顶板和底板的计算误差,误差减小量最大达到了5.65%.因此在对翼板变厚度箱梁计算时,考虑翼板厚度变化的影响,对计算结果是非常有利的.

3)变厚度箱梁剪力滞效应的计算受截面特性常数的影响,而截面特性常数与翼板形心的位置有关,所以翼板的形心位置是对翼板变厚度箱梁的应力计算产生影响的因素之一.笔者认为,利用翼板的中心线来计算箱梁截面特性常数,进而分析箱梁的剪力滞效应,可得到更合理的结果.

参考文献( References) :

[1] 张士铎,邓小华,王文洲.箱形薄壁梁剪力滞效应[M].北京:人民交通出版社,1998:111-132.(ZHANG Shiduo,DENG Xiaohua,WANG Wenzhou.Shear Lag Effect in Thin-Walled Box Girder[M].Beijing:China Communications Press,1998:111-132.(in Chinese))

[2] 郭金琼,房贞政,郑振.箱形梁设计理论[M].2版.北京:人民交通出版社,2008:1-50.(GUO Jinqiong,FANG Zhenzheng,ZHENG Zhen.Design Theory of Box Girder[M].2nd ed.Beijing:China Communications Press,2008:1-50.(in Chinese))

[3] 周旭辉,罗旗帜,张琪.薄壁箱梁剪力滞动力特性的有限段法[J].佛山科学技术学院学报(自然科学版),2017,35(1):70-75.(ZHOU Xuhui,LUO Qizhi,ZHANG Qi.Finite segment method for analyzing the dynamic characteristics of thin-walled box girder considered the shear lag effect[J].Journal of Foshan Institute of Science and Technology(Natural Science Edition),2017,35(1):70-75.(in Chinese))

[4] 黄敦文,舒小娟,沈明燕,等.载荷横向变位对箱梁剪力滞效应的影响[J].力学与实践,2015,37(6):719-724.(HUANG Dunwen,SHU Xiaojuan,SHEN Mingyan,et al.The shear lag effect of box beams with varying lateral loading locations[J].Mechanics in Engineering,2015,37(6):719-724.(in Chinese))

[5] REISSNER E.Analysis of shear lag in box beams by the principle of minimum potential energy[J].Quarterly of Applied Mathematics,1946,5(3):268-278.

[6] MANOJ L,SAGAR S.Influence of box shape on structual behaviour of RC box girder bridgers[J].Indian Concrete Journal,2007,81(6):55-62.

[7] 蔺鹏臻,杨子江,刘凤奎,等.混凝土箱梁考虑翼板厚度变化的剪力滞效应[J].土木建筑与环境工程,2013,35(1):76-79,116.(LIN Pengzhen,YANG Zijiang,LIU Fengkui,et al.Shear lag effect of concrete box girders considered varying flange-depths[J].Journal of Civil Construction and Environmental Engineering,2013,35(1):76-79,116.(in Chinese))

[8] 张玉平,胡火全,李传习,等.薄壁箱梁剪力滞翘曲位移函数的改进与对比分析[J].应用力学学报,2016,33(6):1099-1105,1126.(ZHANG Yuping,HU Huoquan,LI Chuanxi,et al.An improvement and comparative analysis of shear lag warping displacement function in thinwalled box girder[J].Chinese Journal of Applied Mechanics,2016,33(6):1099-1105,1126.(in Chinese))

[9] 肖军,李小珍,刘德军,等.不同位移函数对箱梁剪力滞效应的影响[J].中国公路学报,2016,29(9):90-96.(XIAO Jun,LI Xiaozhen,LIU Dejun,et al.Influence of different displacement functions on shear lag effect of box girders[J].China Journal of Highway and Transport,2016,29(9):90-96.(in Chinese))

[10] 陈常松,邓安.高次位移函数时箱梁剪滞效应变分法解[J].重庆交通大学学报(自然科学版),2009,28(1):5-7,44.(CHEN Changsong,DENG An.Variational solution of shear lag effect of box girder in high order displacement function[J].Journal of Chongqing Jiaotong University(Natural Science),2009,28(1):5-7,44.(in Chinese))

[11] 张慧,张玉元,张元海,等.单箱双室简支箱梁剪切变形及剪力滞双重效应分析[J].应用数学和力学,2016,37(8):791-803.(ZHANG Hui,ZHANG Yuyuan,ZHANG Yuanhai,et al.Analysis on shear deformation and shear-lag effects on twin-cell box girders[J].Applied Mathematics and Mechanics,2016,37(8):791-803.(in Chinese))

[12] 甘亚南,周广春.薄壁箱梁纵向剪滞翘曲函数精度选择的研究[J].工程力学,2008,25(6):100-106.(GAN Yanan,ZHOU Guangchun.An approach for precision selection of longitudinal shear lag warping displacement function of thin-walled box girders[J].Engineering Mechanics,2008,25(6):100-106.(in Chinese))

[13] 谢旭,黄剑源.薄壁箱型梁剪力滞效应分析的刚度法[J].工程力学,1995,12(2):95-102.(XIE Xu,HUANG Jianyuan.Stiffness method for analysis of shear lag effect on thin-walled box girder[J].Engineering Mechanics,1995,12(2):95-102.(in Chinese))

[14] 张元海,白昕,林丽霞.箱形梁剪力滞效应的改进分析方法研究[J].土木工程学报,2012,45(11):153-158.(ZHANG Yuanhai,BAI Xin,LIN Lixia.An improve approach for analysis shear lag effect of box gieders[J].China Civil Engineering Journal,2012,45(11):153-158.(in Chinese))

[15] 倪元增,钱寅泉.弹性薄壁梁桥分析[M].北京:人民交通出版社,2000:77-98.(NI Yuanzeng,QIAN Yinquan.Elastic Analysis if Thin-Walled Beam Bridges[M].Beijing:China Communications Press,2000:77-98.(in Chinese))

[16] 张元海,李琳,林丽霞,等.以附加挠度作为广义位移时薄壁箱梁剪力滞效应的梁段有限元分析[J].土木工程学报,2013,46(10):100-107.(ZHANG Yuanhai,LI Lin,LIN Lixia,et al.Beam-segment finite element analysis on shear lag effect of thin-walled boc girder adopting additional deflection as generalized displacement[J].China Civil Engineering Journal,2013,46(10):100-107.(in Chinese))

[17] 张元海,李乔.箱形梁剪滞效应分析中的广义力矩研究[J].铁道学报,2007,29(1):77-81.(ZHANG Yuanhai,LI Qiao.Study on the generalized moment in shear lag effect analysis of the box girder[J].Journal of the China Railway Society,2007,29(1):77-81.(in Chinese))

[18] 蔺鹏臻,刘凤奎,冀伟,等.变分原理分析混凝土箱梁的剪力滞效应[J].铁道学报,2013,35(2):93-98.(LIN Pengzhen,LIU Fengkui,JI Wei,et al.Analysis on shear lag effect of concrete box beam by variational principle[J].Journal of the China Railway Society,2013,35(2):93-98.(in Chinese))

Analysis of Shear Lag Effects in Box Girders With Variable-Thickness Flanges

ZHAO Qingyou, ZHANG Yuanhai, SHAO Jiangyan
(School of Civil Engineering,Lanzhou Jiaotong University,Lanzhou 730070,P.R.China)

Abstract:For concrete box girders with flanges of linearly variable thicknesses along the cross section widths,shear lag effects were analyzed according to the potential energy variation principle.The additional deflection caused by the shear lag effect was used as the generalized displacement to describe the shear lag deformation state,in view of the influence of the axial force equilibrium condition on the shear lag.The calculation results of several simply supported box girders subjected to uniform loads and concentrated loads were compared.The results show that,the proposed method gives stresses in good agreement with those obtained from the finite element method,which confirms the correctness of this method.Compared with the simplified calculation method for box girders with equivalent uniform-thickness flanges,this method has enhanced accuracy for real box girders with variable-thickness flanges,and the error reduction is up to 5.65%.

Key words:thin-walled box girder;shear lag effect;energy variation method;variable-thickness flange;axial force balance

中图分类号: O39

文献标志码:A

DOI:10.21656/1000-0887.390259

文章编号:1000-0887(2019)06-0609-11 应用数学和力学编委会,ISSN 1000-0887

* 收稿日期: 2018-09-30;修订日期: 2019-04-25

基金项目: 国家自然科学基金(51468032)

作者简介: 赵庆友(1992—),男,硕士生(E-mail:375400078@qq.com);张元海(1965—),男,教授,博士,博士生导师(通讯作者.E-mail:zyh17012@163.com).

Foundation item:The National Natural Science Foundation of China(51468032)

引用本文/Cite this paper:

赵庆友,张元海,邵江艳.翼板变厚度箱形梁的剪力滞效应分析[J].应用数学和力学,2019,40(6):609-619.

ZHAO Qingyou,ZHANG Yuanhai,SHAO Jiangyan.Analysis of shear lag effects in box girders with variable-thickness flanges[J].Applied Mathematics and Mechanics,2019,40(6):609-619.